Mérignac (33700) APPARTEMENT T3 MERIGNAC CAPEYRON - LOGGIA - PARKING COUVERT
En Exclusivité, Notre agence LA CLÉ DU PATRIMOINE vous présente ce bel appartement T3 d'une surface de 67 m2 environ avec loggia d'environ 9 m2 positionné au 2ème étage d'une résidence sécurisée avec ascenseur datant de 2016. Implanté avenue de la Libération à Mérignac, proche de toutes les commodités (commerces, écoles, transports), et du centre ville de Mérignac, vous serez à quelques pas de l'arrêt de bus lignes 33 et 35.
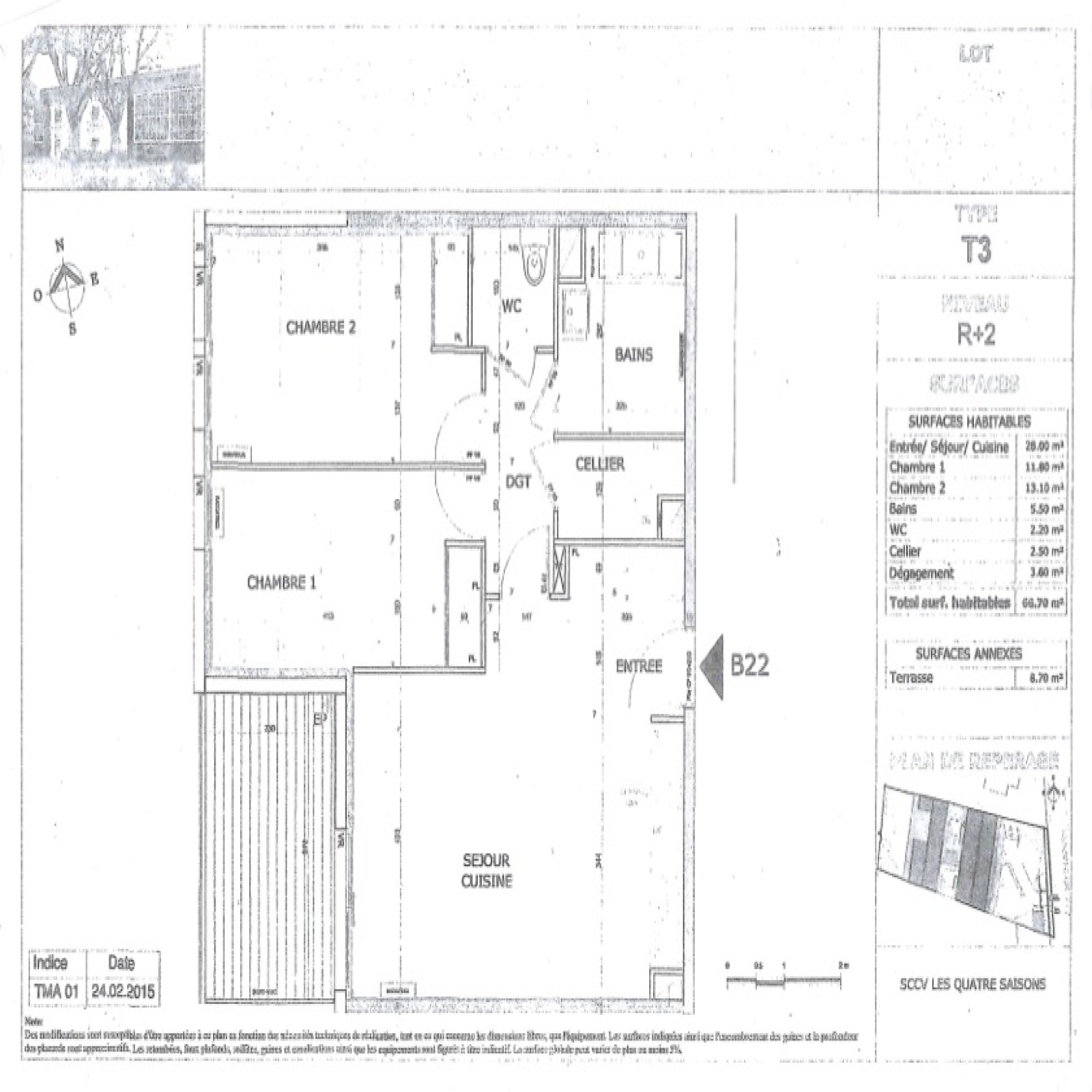
Le logement se situe à l'arrière de la résidence, au calme, dans la verdure. Il se compose d'une entrée avec placard, d'une pièce de vie lumineuse d'environ 28 m2 orientée OUEST donnant sur la loggia d'environ 9 m2, d'une cuisine ouverte aménagée et équipée, d'un cellier, de deux chambres (12 m² et 13 m² environ) avec placards, d'une salle de bains ainsi que d'un WC indépendant. Une place parking couverte (numéro 25) complète ce bien.
Chauffage au gaz et volets roulants électriques. DPE C. GES C. Prestations soignées.
Taxe foncière : 1299 euros. Charges de copropriété : 120 euros par mois. Copropriété de 33 logements.
Pour toute question ou pour une visite, je suis à votre disposition. Johanna CLEDOU 06 32 21 35 63. Mail : jc@lacledupatrimoine.com
Les caractéristiques Du bien
Les infos Financières
La base légale du traitement repose sur l’intérêt légitime de l'Agence / du Réseau.
Elles sont conservées jusqu'à demande de suppression et sont destinées à l'Agence / au Réseau.
Conformément à la loi « informatique et libertés », vous pouvez exercer votre droit d'accès aux données vous concernant et les faire rectifier en contactant l'Agence / le Réseau.
Si vous estimez, après avoir contacté l'Agence / le Réseau, que vos droits « Informatique et Libertés » ne sont pas respectés, vous pouvez adresser une réclamation à la CNIL.
Nous vous informons de l’existence de la liste d'opposition au démarchage téléphonique « Bloctel », sur laquelle vous pouvez vous inscrire ici : https://www.bloctel.gouv.fr
Dans le cadre de la protection des Données personnelles, nous vous invitons à ne pas inscrire de Données sensibles dans le champ de saisie libre
Ce site est protégé par reCAPTCHA, les Politiques de Confidentialité et les Conditions d'Utilisation de Google s'appliquent.
Détails des diagnostics énergétiques
